グラスライニング制カラム
蒸留、抽出、吸収工程に使用される耐食性カラム
グラスライニング制カラムは非常に腐食性または反応性の高い媒体を取り扱う厳しい産業プロセスに適しています。鋼鉄製の外殻はカラムに圧力に耐える強度を提供し、グラスライニングは腐食から装置を保護するとともに、プロセス媒体と金属の接触を防止します。この設計により、蒸留、吸収、抽出などのプロセスにおいて、耐腐食性カラムはより安全で安定性が高く、長寿命を実現します。
グラスライニング制カラムは非常に腐食性または反応性の高い媒体を取り扱う厳しい産業プロセスに適しています。鋼鉄製の外殻はカラムに圧力に耐える強度を提供し、グラスライニングは腐食から装置を保護するとともに、プロセス媒体と金属の接触を防止します。この設計により、蒸留、吸収、抽出などのプロセスにおいて、耐腐食性カラムはより安全で安定性が高く、長寿命を実現します。
当社のグラスライニング制カラムは蒸留、抽出、吸収をはじめとする各種分離・処理工程に採用されています。JISまたはASME規格に準拠しており、信頼性の高い性能と産業要求への適合性を保証します。ガラスの化学的不活性性と鋼構造物の強度を融合した設計により、耐久性と耐腐食性を兼ね備えた装置を実現しています。
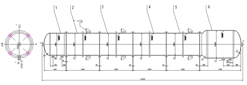
標準的なグラスライニング制カラムに加え、蒸留塔・抽出塔・吸収塔をはじめ、特定の運転条件に合わせた特注カラムおよびその他グラスライニング機器の提供が可能です。
| 設計温度 | 0℃~+200℃ | |
| 設計圧力 | 塔内 | FV-0.25MPa |
| ジャケット | 0.6MPa | |

| DN | D (mm) | 最大長さ L (mm) | 最大断面長さ L1 (mm) | 組立方法 |
| 200 | 219 | 3000 | - | 分割フランジで組立て |
| 250 | 273 | 3000 | - | |
| 300 | 325 | 3000 | 500 | |
| 400 | 406 | 3000 | 750 | クランプで組立て |
| 500 | 508 | 3000 | 1000 | |
| 600 | 600 | 4000 | 1400 | |
| 800 | 800 | 4500 | 2000 | |
| 1000 | 1000 | 4500 | 2500 | |
| 1200 | 1200 | 6000 | 4000 | |
| 1400 | 1400 | 6000 | 4000 | |
| 1600 | 1600 | 6000 | 4000 | |
| 1800 | 1800 | 6000 | 4000 | |
| 2000 | 2000 | 6000 | 4000 |
備考:カラム用ノズルおよび付属品は、お客様の特定の要求に基づいてカスタマイズ可能です。



当社は、化学・製薬・産業用途向けの耐食性グラスライニング反応器・貯蔵タンク・カスタムプロセス機器について、豊富な実績に基づく専門的な指導を提供します。
当社はグラスライニング制カラムの特注を承ります。プロジェクトのご要望に応じて、精留塔、抽出塔、吸収塔をはじめ、その他の非標準形状のガラスライニング装置もお引き受けします。
主な利点の一つは、滑らかで汚れが付着しにくい内面です。これにより洗浄が容易になります。さらに、ガラスライニングの不浸透性により異なるバッチ間での交差汚染を防止し、その化学的安定性が処理される材料の純度、色、風味をそのまま保持することに貢献します。